محصولات
| در دسترس بودن: | |
|---|---|
| مقدار: | |
کاهنده CPVC SCH 80
1. نام آیتم ها: SCH 80 CPVC Reducer
2. مواد: پلی وینیل کلرید کلر
3. اندازه: 1/2 اینچ تا 10 اینچ
4.Color: خاکستری یا سفارشی
5. اتصال: سوکت
6.Standard:ASTM D CPVC SCH80
7. گواهی: NSF، ISO، SGS

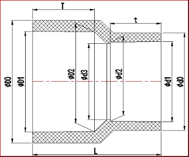
| رسم اتصالات CPVC SCH 80، PVC/C، SCH 80 ASTM F439 | ||||||||||
| dn (*') | اندازه (mm) | |||||||||
| D0 | D1 | D2 | d0 | d1 | d2 | d3 | تی | تی | L | |
| 3/4'*1/2' | 36.90 | 26.87 | 26.57 | 30.50 | 21.54 | 21.23 | 17.00 | 23.22 | 26.40 | 58.60 |
| 1'*1/2' | 44.70 | 33.66 | 33.27 | 30.50 | 21.54 | 21.23 | 17.00 | 23.22 | 29.57 | 65.10 |
| 1'*3/4' | 44.70 | 33.66 | 33.27 | 36.90 | 26.87 | 26.57 | 22.50 | 26.40 | 29.57 | 66.30 |
| 1-1/4'*1/2' | 54.00 | 42.42 | 42.04 | 30.50 | 21.54 | 21.23 | 17.00 | 23.22 | 32.75 | 72.68 |
| 1-1/4'*3/4' | 54.00 | 42.42 | 42.04 | 36.90 | 26.87 | 26.57 | 22.50 | 26.40 | 32.75 | 73.80 |
| 1-1/4'*1' | 54.00 | 42.42 | 42.04 | 44.70 | 33.66 | 33.27 | 29.00 | 29.57 | 32.75 | 73.80 |
| 1-1/2'*3/4' | 60.60 | 48.56 | 48.11 | 36.90 | 26.87 | 26.57 | 22.50 | 26.40 | 35.93 | 80.00 |
| 1-1/2'*1' | 60.60 | 48.56 | 48.11 | 40.70 | 33.66 | 33.27 | 29.00 | 29.57 | 35.93 | 80.00 |
| 1-1/2'*1-1/4' | 60.60 | 48.56 | 48.11 | 54.00 | 42.42 | 42.04 | 38.00 | 32.75 | 35.93 | 78.70 |
| 2 '*1' | 73.10 | 60.63 | 60.17 | 44.70 | 33.66 | 33.27 | 29.00 | 29.57 | 39.10 | 88.20 |
| 2 '*1-1/4' | 73.10 | 60.63 | 60.17 | 54.00 | 42.42 | 42.04 | 38.00 | 32.75 | 39.10 | 88.20 |
| 2 '*1-1/2' | 73.10 | 60.63 | 60.17 | 60.60 | 48.56 | 48.11 | 43.00 | 35.93 | 39.10 | 88.50 |
| 10 '*8' | 305.00 | 273.81 | 272.67 | 245.90 | 219.84 | 218.69 | 208.00 | 102.60 | 128.00 | 269.75 |
| اندازه | PCs/ctn | وزن (گرم/تکه) | طول (سانتی متر) | عرض (سانتی متر) | ارتفاع (سانتی متر) |
| 3/4×1/2' | 384 | 49.634 | 43.5 | 31 | 30 |
| 1×1/2〞 | 288 | 59.01 | 43.5 | 31 | 30 |
| 1×3/4〞 | 192 | 74.347 | 43.5 | 31 | 30 |
| 1-1/4×1/2' | 180 | 90.727 | 36 | 36 | 26 |
| 1-1/4×3/4' | 180 | 96.928 | 36 | 36 | 26 |
| 1-1/4×1' | 147 | 106.431 | 41 | 41 | 24 |
| 1-1/2×1/2' | 144 | 72.579 | 41 | 41 | 24 |
| 1-1/2×3/4' | 175 | 123.24 | 43.5 | 31 | 30 |
| 1-1/2×1' | 168 | 113.61 | 41 | 41 | 24 |
| 1-1/2×1-1/4' | 140 | 141.7 | 44.5 | 33 | 34.5 |
| 2×1-1/2' | 80 | 195 | 30.5 | 30.5 | 45.5 |
| 2×1' | 128 | 153.72 | 30.5 | 30.5 | 45.5 |
| 2×1-1/4' | 128 | 173.537 | 30.5 | 30.5 | 45.5 |
| 10×8' | 2 | 6422 | 30.5 | 30.5 | 45.5 |
1. CPVC اکثر ویژگی ها و خواص PVC را به اشتراک می گذارد. همچنین به راحتی قابل کار است، از جمله ماشینکاری، جوشکاری و شکل دهی.
2. به دلیل مقاومت در برابر خوردگی عالی در دماهای بالا،
3. CPVC به طور ایده آل برای سازه های خود نگهدار که در آن دمای تا 200 درجه فارنهایت (90 درجه سانتیگراد) وجود دارد، مناسب است.
4. به دلیل ترکیب خاص آن، مقابله با CPVC نیاز به سیمان حلال تخصصی، با انواع سیمان حلال با استحکام بالا دارد.
5. اولین بار در سال 1965 توسط Genova Products معرفی شد و سپس محصولات دیگری مانند خطوط Weld-On IPS عرضه شد.
6. قابلیت خم کردن، شکل دادن و جوش CPVC استفاده از آن را در طیف گسترده ای از فرآیندها و کاربردها امکان پذیر می کند.
7. خواص ضد حریق را نشان می دهد.
اتاق نمایش

مدیران دارای سوابق تحصیلی در خارج از کشور یا تجربه کاری هستند، آنها مهارت های مدیریتی به روز و فناوری های پیشرفته را به تیم معرفی می کنند.
بیش از 200 دستگاه تزریق، 80 تجهیزات پردازش مکانیکی، از جمله ماشین آلات وارداتی از تایوان، ژاپن و آلمان
Huasheng در سال 1988 تاسیس شد که بیش از 20 سال تجربه در اکستروژن و تزریق پلاستیک داشت.
تیم QC دقیق 24 ساعته که از سیستم مدیریت کیفیت ISO 9001 پیروی می کند
یک سیستم گرد نرم افزار و تجهیزات تست به روز برای تحقیق و توسعه

Huasheng Plastic مجهز به یک کارخانه حرفه ای، یکی از بهترین تولید کنندگان در چین است که می تواند اتصالات لوله های پلاستیکی sch 80 cpvc را به شما ارائه دهد. ما همچنین می توانیم مشاوره لیست قیمت کوپلینگ کاهنده sch 80 cpvc، اتصالات لوله پلاستیکی را به شما ارائه دهیم، به خرید محصولات سفارشی ما خوش آمدید.
محصولات